优秀设计师
中秋节大家过的怎么样啊,有没有吃到好吃的月饼呢?北京合建志洋装饰公司的中秋优惠活动有没有参加呢?今天要给大家介绍的楼盘也是北京合建志洋装饰公司参与装修设计的,位于CSD办公楼南侧昊天北大街的天资华府楼盘,如果正好也是你想咨询的楼盘,那就赶紧来看看天资华府户型图以及合建志洋的装修案例吧。
北京天资华府位于西南五环畔,出入北京城方便快捷,打造出则繁华入则静谧的宜居社区,小区内部人车分流,全缓坡无障碍式出行。小编了解到,北京合建志洋装饰公司也为购买该楼盘的业主进行装修,参与设计装修的户型从94平米两居室、117平米三居室和 平米三居室,那么接下来就来了解一下北京合建志洋装饰公司的实力究竟几何吧。
北京天资华府项目外景效果图

北京天资华府楼盘户型一:94平米两室一厅
原始户型图

本户型极为合理,不需要多做改动,进门玄关处,稍作改动即可风格定义为美式风格。本方案对于装修的要求比较特别,地板及墙面的要求比较特殊。所以采用了护墙板及地板、地砖相结合的地面的设计。突出了美式风格的基本理念。



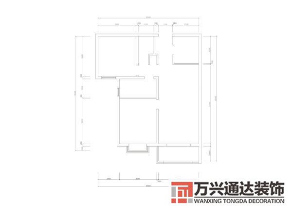
北京天资华府楼盘户型二:117平米三室两厅
原始户型图

北欧风格装修效果图
本方案在设计上追求功能与形式完美统一,优雅独特,简洁明快的设计风格。针对这一主题,设计上以协调各功能空间的使用要求为目的,布局上力求合理,功能上力求完备,动线计划上争取做到畅通合理,满足功能要求,同时又给人以艺术之美感。



设计采用简约明朗的线条,将空间进行了合理的分隔。面对扰嚷的都市生活,一处能让心灵沉淀的生活空间,是本房业主心中的一份渴望,也是本设计在该方案中所体现的主要思想。因此,开放式的大厅设计给人以通透之感,避免视觉给人带来的压迫感,可缓解业主工作一天的疲惫。没有夸张,不显浮华,通过过于干干净净的设计手法,将业主的工作空间巧妙地融入到生活空间中。



简欧风格装修效果图
卧室:南向主卧,保证充足采光。厨房:明厨设计,让油烟远离室内。餐厅:客厅餐厅分而不离,简洁便利。门厅位置加一组储物柜,方面进出入初五满足的基础功能需求。拆去背面卧室的轻体墙,使得原本两个不规则的房间成为两个正方形的常规空间。次卧2设计为榻榻米,满足功能需求。去掉主卫的门,新建一堵墙做干湿分离用,洗脸盆放在干区让空间更宽敞。



北京天资华府楼盘户型三: 平米三室两厅
原始户型图

北欧风格装修效果图
户型缺陷分析:
1. 入户门直接冲着窗户,空间格局分的不是太明确。
2. 厨房结构缺角,洗衣机原始摆放位置空间利用率太低。
3. 三个卧室如何利用提高利用率。
建议拆改方案
1. 门厅进门加玄关,阻挡入户门直接对着餐厅窗户,同时解决隐私问题。
2. 把原有的洗衣机空间划为厨房,整体厨房变为U型的,提高利用率。
3. 考虑其中一个卧室作为榻榻米加书房的多功能空间。



现代简约风格装修效果图
现代风格是比较流行的一种风格,追求时尚与潮流,非常注重居室空间的布局与使用功能的完美结合。此案结合年轻业主的喜好,搭配了较多饱和度高的鲜艳颜色,让空间更加活泼更加富有朝气。



以上就是小编为大家整理的由北京合建志洋装饰公司进行装修设计的北京天资华府楼盘的几种户型装修效果图案例,希望对大家有所帮助。
。推荐阅读: