9.1茶馆一品堂永远免费论坛,xc8866茶楼楼凤大修车队论坛,一品小红楼论坛,一品楼免费信息论坛花满楼全国信息论坛

打造中国专业公装网站,截止目前已为26829位用户提供了优质装修服务! | | 北京装修公司咨询电话: 400-900-4560 | 网站地图
选择城市
热门城市:
×
B

我也要设计成这样

今天已有125人获取了装修预算
所在城市:*
房屋面积:*
空间状态:*
空间状态
  • 空间状态
  • 毛坯房
  • 旧房重装
  • 局部改造
装修档次:*
装修档次
空间类型:*
空间类型
    *

    北京万兴通达办公装修项目-京茂香源装修效果图

    案例介绍

    优秀设计师

    • 项目名称: 北京万兴通达办公装修项目-京茂香源装修效果图
    • 服务项目: 办公装修案例
    • 设计时间: 2022-06-02 22:58:13

     

    项目日期:2018年06月25日

    项目面积:1800㎡

    项目类型:办公空间

    项目地址:大兴区黄村镇物顺南路7号院3号楼

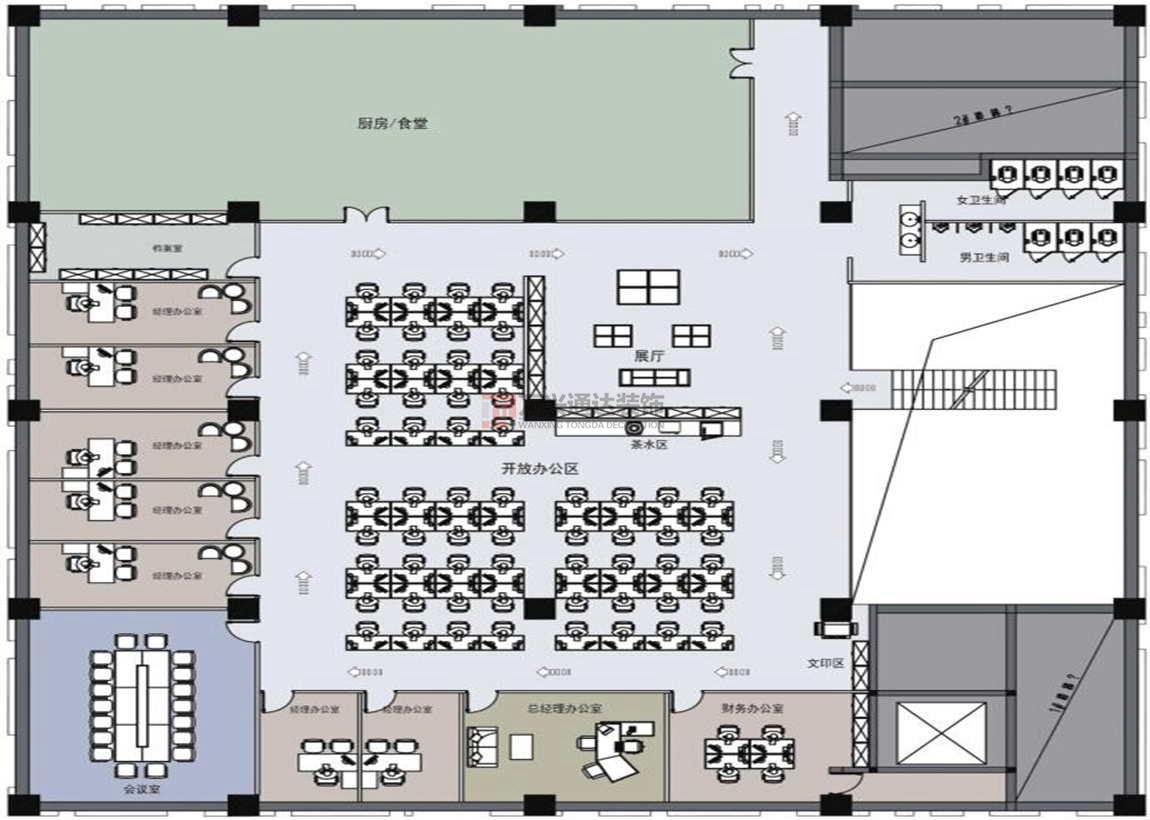
    北京万兴通达办公装修项目-京茂香源装修效果图

    一层平面图

    北京万兴通达办公装修项目-京茂香源装修效果图

    二层平面图

    北京万兴通达办公装修项目-京茂香源装修效果图

    前台区

    北京万兴通达办公装修项目-京茂香源装修效果图

    公共办公区

    北京万兴通达办公装修项目-京茂香源装修效果图

    大会议室

    北京万兴通达办公装修项目-京茂香源装修效果图

    小会议室

    北京万兴通达办公装修项目-京茂香源装修效果图

    总经理办公室

    编辑:万兴通达

    推荐阅读:

    全包装修价格一览表(全包装修价格一般多少钱)

    无锡创意办公室装修报价

    儿童游泳馆装修图片婴儿游泳馆图片 装修风格

    。