优秀设计师
新房装修流程是怎样?50岁大妈记录装修全程,比视频拍摄还全面
新房装修流程,不管你多大的房子,装修费用一般都在3个月左右,今天,小编给大家带来两位50岁的大叔阿姨从设计到开工到施工、家具购买全程指挥、跟进,然后进行了一个多数人眼中父母的“丑装修”
-------------------房屋基本情况---------------------
面积:86㎡
户型:两室两厅一厨一卫
装修风格:现代简约风格
装修费用:14.5万(基装+主材+地暖+中央空调)
-----------------说正事专用分割线-----------------
▼先上两张局部图


那对于一个新房装修来说,流程到底是什么呢?新房装修流程到底是怎样的呢?
第一步:设计
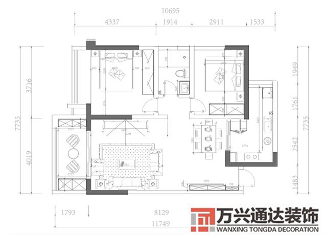
▼先来一张户型图:从户型图上我们可以看到,房屋户型都是非常的方正,格局也是非常的棒,然而唯一不足的就是没有地方晾衣服!

▼设计方案:不拆改原有格局,将厨房原有半开生活阳台打通。

第二步:开工交底
▼熟悉其装修流程,主要要记住有哪些装修阶段,每一个阶段大概要多长时间之类的相关事宜!


PS:有知友问,什么是开工交底?
简单来说,就是签订施工合同前的第一步,由房主、工长、设计师、监理等负责人到场,进行施工方案、特殊设计等最终确定,并且纸质化,避免后期增项这些.....不知是否讲清楚了?如果有其他疑问,也可以私信问我~

如果你家的户型没有什么要拆改的地方,那在这交底完之后一定要进行成品保护(过道、门窗、强弱电箱、下水管关口、灭火器等)、铲墙、刷界面剂工作(增加乳胶漆基层材料粘黏度)

在开工前,最好将水电基本布局图给布局好!
第三步:隐蔽阶段
▼有需要进行拆改的地方,那就进行拆改之后布线,如果有没有拆改的就直接布线。

卫生间开关根据业主阿姨的生活习惯进行了调整。有人疑问为什么不能90度直接做,反而要弯个大月亮,难道是为了增加管道和线路?(其实,我们也很想一根管子拉平,但是后期可能万一或许会出现换线情况,大月亮弯抽线比直角抽线方便太多了?。?/p>
其次,实在没有必要一根管子穿一根线啊喂!一般说来三根线穿一根管子,没有问题的好伐,节约三倍成本?。ㄊ欠衩靼琢宋裁茨慵宜绺脑旆延酶叱鎏旒??望着自家满屋看着横平竖直,并排满满的管道一声长叹啊~~)


▼防水防水防水,重要的事说三遍?。?!
防水第一层:看那个没有被盖住的蓝色,这是用的东方雨虹的防水涂料,切记淋浴房的防水高度一般要做到1.8m!

管道口一定要用东西给遮挡好,防止施工的时候建筑垃圾掉进去堵塞!

防水第二层:丙纶(防水卷材),这个张贴也需要讲究技法的哈,根据顺水方向,上面盖住下面,接缝处大于10公分!

厨房防水:厨房的防水高度最好在30公分左右!如下图↓↓↓

在做这两次防水,第二次在做的时候,一定要注意要在第一次干透之后进行!两遍都完成以后,再继续晾着吧!在做的时候,避免人进去踩踏!
▼闭水试验:闭水此时至少要在48小时左右!

第四步:泥木阶段
▼吊顶,在我们做吊顶之前,一定要做中央空调



▼地暖安装(第三代??楦墒降嘏?在冬天室内温度和室外温度没差的成都,有地暖真的不要太幸福?。。?!看着安装




▼贴砖
接下来就要进行贴砖!






电视墙设计!


第五步:油漆阶段
▼进行刮腻子,石膏,上底漆等



哇,终于到了最后一个阶段了,所有的都完工了!接下来就要开始进家具家电了!
▼简约不简单,品质才是最舒适贴心的选择
在开工前,橱柜和衣柜等就早就定下来了,因为这些都是要时间定制的!



在我们选择家具的时候,一定要遵循一看、二摸、三对比、四体验之后才决定!


茶几与电视柜、餐桌相互映衬,黑色线条勾勒综合了房屋过分的明亮,看起来更加协调、柔和。


本户型有个超大的阳台!直接做成落地窗,采光够够的!但也犹豫户型没有多余的部分,所以晾衣只能坐在阳台上。另外阳台两端一边做了正面的衣柜,另一边做了到顶的书桌(业主有个帅气的儿子,并且业主先生是一个知识面很广,专业度很深的人,也会经常用到书桌)

▼低调的奢华(接下来是是重金的部分)
菲俪全屋定制衣柜,空间布局、线条、色彩、质感,每一处细节简直不能细看,多看一眼都会爱上的好么??!搭配阳光林森的床具、乳胶垫,还有什么比全身心的放松更完美呢???(有,请告诉我~)



PS:插播一句,关于床头插座,很多人抱怨柜子遮挡住了插座,使用感太不方便了。在此,答主建议一定要先选好床柜,确定一个大概的高度,否则后期即便遇上很喜欢很喜欢的柜子之类的,可能因为前期设计不合理,要么放弃,要么委屈~~



哎呀,终于结束了,看这就是装修的完整过程,希望能够帮到大家!
如果您准备装修,可点开作者头像进入主页,点击正下方“户型设计”,即可免费领取4套户型设计方案+当地精准报价一份!

------------------------------------------------------------------------------------------
点击“了解更多”,查看2018精准装修报价,多多比较少花冤枉钱!

。推荐阅读: