优秀设计师
奢华的装修容易让人产生距离感,精致简约的设计往往更适合居家生活。生活压力之下,人们更推崇化繁为简的装修方式,不需要多余的装饰品,以简单的装修营造出宽敞大气的效果。比如接下来这套装修案例,125平的空间有着简约的基调,又有细节的精致,大气又不浮夸,进屋就不想离开了。

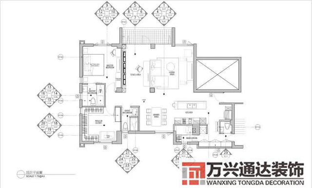
原平面图,125平方米三室一厅的布局,没有独立的餐厅和书房。主卧承重墙延伸出的部分,影响了室内采光。

改造后的平面图,拆除了主卧承重墙延伸部分,缩小卧室空间,增加采光的同时也开辟出书房空间。小卧室拆除墙壁,变身餐厅空间。打通空间后室内更宽敞。常住人口三人(夫妻+保姆阿姨),将保姆房设计在厨房后面的空间,生活互不打扰。


客厅以灰白色为基调,干净又舒适,黄铜色点缀丰富空间。拆除主卧延伸的墙面,释放空间让室内通风采光条件更好。客厅横梁和柱子非常明显,但并没有刻意去掩盖,反倒有着分隔空间的作用,客厅、书房、餐厅彼此独立,又连成一体,空间通透又宽敞。

电视墙直接刷白,没有任何的造型装饰,简洁耐看。欧式的天花布局,简约的造型设计也很有特色,与过道地砖花纹相呼应。

拆除主卧延伸墙体,开辟出了书房空间。书房与客厅连成一体,不仅空间宽敞还增加了互动效果。几何形拼接的地板,与书架的菱形装饰相呼应,很有设计美感。


餐厅由小卧室改造而成,拆除墙面和厨房设计成开放式。白色为主调提升空间明亮,木色家具点缀更显自然轻松。

过道空间,云石地板和客厅地板形成拼撞,满足了各个空间的需求。入户动线的拉长,使得空间更加宽敞。


卫生间同样的白色为主色,少量的金属色点缀,空间宽敞又不单调。浴柜是定制的木面材质,搭配上台上盆,视觉效果很棒。


卧室床头墙壁采用木饰板,大白墙加入原木家具,明亮净洁。顶面延续了传统欧式线条装饰,简洁线条感十足。


走进衣帽间让人惊讶,一台老式脚踏缝纫机映入眼帘,虽然被淘汰但它承载着一代人的回忆,传承着母亲的心灵手巧和勤劳善良。吊顶丰富空间层次,同时降低层高提升舒适性。沿着挂杆安装灯带,提升衣帽间照明。穿衣镜设计很巧妙,做了可移动轨道,方便移动试衣服。
。推荐阅读: